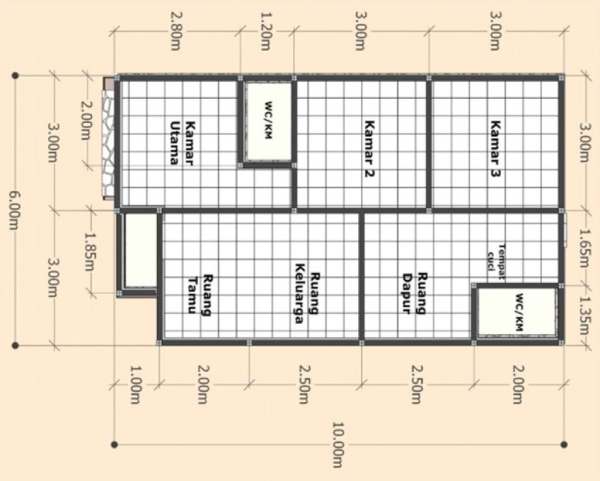
Denah Rumah 12×8 – Mempersiapkan diri untuk merancang atau merenovasi rumah adalah tahapan yang sangat menarik dan penting dalam perjalanan hidup. Salah satu elemen kunci yang perlu diperhatikan adalah denah rumah. Dalam artikel ini, kita akan menjelajahi potensi kreatif dan fungsional dari denah rumah dengan ukuran 12×8 meter. Denah ini, meskipun tampak kompak, menyediakan ruang […]
