Denah Ruko 5×10 – Ruko adalah jenis bangunan yang dari kata rumah dan toko. Rumah bermakna rumah memiliki penghuni sementara toko ialah ruang untuk melakukan kegiatan usaha. Maka dapat disimpulkan ruko ialah sebuah bangunan yang menggabungkan fungsi tempat tinggal dan kerja dalam satu tempat.
Keputusan memilih ruko sering diambil karena pemilik tidak perlu beli rumah dan toko secara terpisah dan meminimalisir waktu mobilisasi. Bila Anda saat ini sedang berniat membuat ruko inilah inspirasi dengan ruko 1 lantai 5 x10 yang dapat digunakan untuk berbagai keperluan.
Denah Ruko 5×10 Unik dan Multifungsi
- Denah Ruko 1 Lantai 5 x 10 Kamar Mandi Depan

Bila kamar mandi biasanya diletakan paling belakang, pada ide denah ruko 1 lantai 5×10 ini, Anda dapat memperoleh deskripsi sisi depan ruangan berisi toilet, ruang kerja, dan kamar tidur. Pembagian ruang seperti ini bisa diterapkan untuk Anda yang manfaatkan ruko sebagai gudang penyimpanan stok barang.
- Denah Ruko 1 Lantai 5 x 10 dengan Taman Belakang

Bangunan ruko yang berkesan tertutup betul-betul terlihat kaku dan kurang segar karena tidak ada taman di sekitarnya. Tetapi dengan denah seperti di atas, Anda bisa memanfaatkan sisa ruang di bagian belakang ruko untuk jadi taman. Selainnya ruang berkebun, taman belakang juga bisa dimanfaatkan sebagai tempat menjemur baju.
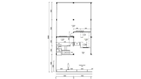
- Denah Ruko 1 Lantai 5×10 dengan Double Teras

Tidak hanya satu, pada denah ruko 1 lantai 5 x 10 ini ditempatkan dua teras di bagian depan dan belakang. Cara ini bisa Anda coba untuk membuat ruang rileks di belakang rumah yang dapat dimanfaatkan untuk meletakan barang atau berolahraga di saat luang.
Jika memiliki dana lebih, lahan kosong di belakang ruko bisa disulap jadi kolam ikan kecil.
- Denah Ruko 1 Lantai 5×10 dengan Garasi Luas

Kebanyakan ruko memang telah menyediakan lahan parkir, tetapi Anda bisa menambah slots parkir dengan membuat denah ruko 1 lantai 5×10 seperti di atas. Contoh pembagian ruang itu juga bisa diterapkan untuk ruko yang dipakai sebagai lokasi usaha pada bagian depan dan tempat ada di bagian belakangnya.
- Denah Ruko 1 Lantai 5×10 untuk Tempat Tinggal

Tidak hanya digunakan sebagai tempat berniaga, banyak keluarga sekarang memilih ruko sebagai rumah lho! Seperti ide denah di atas, Anda dapat membagi ruko jadi beberapa ruangan dan sisi teras depan bisa digunakan sebagai tempat buka toko kecil.
- Denah Ruko 1 Lantai 5 x 10 dengan Mini Office

Bila kebanyakan ruko memakai seluruh tempat depan untuk usaha, di denah ruko 1 lantai 5 x 10 ini, Anda dapat membagikan area secara vertikal dari depan.
Gunakan sisi ruko yang besar untuk lokasi usaha sementara manfaatkan tersisa ruangan untuk mini office seperti ruang menerima tamu atau ruang rapat. Sisanya, buat pantry di bagian belakang dan kamar mandi dan taman.
- Denah Ruko 1 Lantai 5 x 10 Teras Letter L

Inspirasi denah ruko 1 lantai 5×10 yang lain selanjutnya memiliki teras dengan wujud letter L. Cara ini dapat Anda gunakan menjadi lahan parkir motor atau area dapur bila usaha yang dijalankan berkaitan dengan kuliner.
Penempatan dapur di tempat depan jadikan area ruko jadi open kitchen dan lebih aman secara keselamatan karena udara panas dari alat masak dapat semakin cepat keluar.
- Denah Ruko 1 Lantai 5 x 10 dengan Satu Kamar

Terakhir, denah ruko di atas menempatkan satu kamar di bagian belakang dekat dapur. Selain tempat tidur, sisi tersebut bisa juga Anda ganti jadi kantor kecil atau ruangan kasir bila ruko digunakan sebagai restoran. Sisi dapur yang besar juga pas untuk aktivitas memasak dalam jumlah besar karena tersedia banyak ruang gerak.
Itulah beberpa inspirasi denah rumah ukuran 5×10 yang bisa Anda jadikan referensi. Semoga artikel kali ini bisa bermanfaat ya buat Anda yang.
